Create Your First Project
Start adding your projects to your portfolio. Click on "Manage Projects" to get started
Un luogo per creativi
Tipo di progetto
Ristrutturazione uffici
Data
marzo 2018
Luogo
Milano
Ruolo
Consulenza preliminare strategica,
Progettazione esecutiva,
Pratiche amministrative,
Direzione lavori,
Consulenza di illuminazione,
Consulenza di arredo
Budget
50.000 €
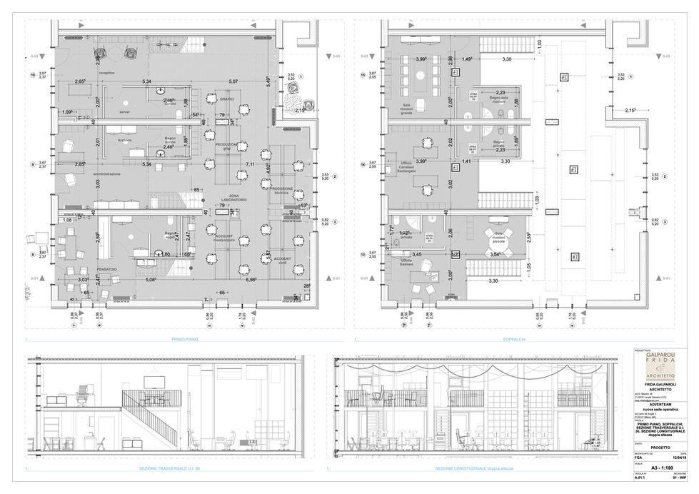
L'agenzia di marketing Adverteam, una delle più prestigiose e dinamiche nel panorama milanese, desiderava una nuova sede che potesse incarnare lo spirito aziendale dinamico e originale.
Tre loft sono stati accorpati per creare un unico grande spazio a doppia altezza per i laboratori dei creativi, i soppalchi sono stati dedicati agli uffici dirigenziali privati e alla sala riunioni. Gli spazi sotto i soppalchi sono diventati reception, zona stampa e ristoro-cucina.
Due soluzioni compositive e tecniche hanno dominato il progetto: le grandi tende acustiche drappeggiate a soffitto, per il contenimento del riverbero, le grandi tende filtranti per la schermatura delle finestre (realizzate da EMMEGI) e la scelta dei colori dalla palette ispirata a Louis Barragan.
Sono stati riutilizzati tutti gli arredi esistenti, la cui nuova composizione ha generato impieghi e configurazioni spaziali originali, come la grande libreria a doppia altezza. Il sistema di illuminazione (IMOON) è studiato per evitare abbagliamento e avere un livello di illuminazione e temperatura di colore della luce perfetti per evitare la distorsione dei colori.































